高空作业平台
 首  页  产品中心 关于ROBT 客服中心 营销中心 技术与服务 新闻中心 联系我们
热门产品: 搬运车    高空作业平台    电动堆高车    电动叉车    电动牵引车    购物车:0
 
   迷你型电动叉车 您的当前位置:首页 >> 产品中心 >> 迷你型电动叉车   
 
BT00887 BT00888
分享到:
 
产品描述   细节设计   视频展示   项目案例
先进性 
·EPS电子助力转向技术率先在叉车上的成功运用:大大体现了环保和人性化的设计理念 
·后轮驱动、变轴距技术的设计应用,大大减小了转弯半径,使整车操纵灵活,能在窄小的场地作业 
·再生制动:叉车在停车、换向、下坡是驱动电机变为发电机,蓄电池反充电,节能高效。 
舒适性 
·可翻转操纵台的设计:更加符合人体工程学,离操作者身体更近,使驾驶者可以实现单手操作,而另一只手可以控制其他的操纵,这样操作者在长时间的驾驶下也不容易感到疲劳;而且翻起的操纵台为驾驶者腾出了较大的空间,使操作者可以轻松地落座或离座;大大提高了操作人员的舒适度和工作环境。 
·宽视野的门架设计,优化了门架结构,使操作者的视野更加开阔,作业效率及安全性得以提高 
·操纵杆分布于操纵者右手边,充分考虑人机工程学原理,提高舒适性,降低操作者的劳动强度。 
可维修性 
·全开的机盖,使蓄电池、电控、驱动轮的保养和维修十分方便。 
·性能可靠的交流行走电机,无碳刷、免维修。 
·整车结构简洁、紧凑。特别右侧门的设计,而且蓄电池下布置有滚轮,用户只需要用手一拉蓄电池,就可以对整车进行一次全面的维修保养。
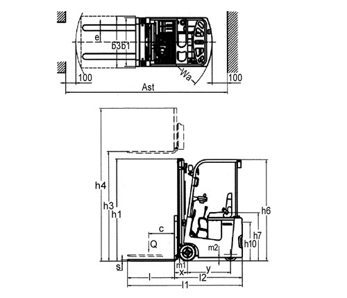
货 号 BT00887 BT00888
性能 驱动方式   电动
操作方式   座驾式
额定荷载能力(Q) kg 800 1200
荷载中心距© mm 500
前悬距(x) mm 250 260
轴距(y) mm 812/897 952/1037
重量 含蓄电池(参见6.5)时自重  kg 1850 2200
满载时桥负载,前/后       kg 2235/415 2720/580
空载时桥负载,前/后 kg 800/1050 910/1290
轮子车体 轮胎:实心橡胶,超弹性体,气胎,聚氨酯胎(前/后)   实心橡胶/聚氨酯胎
前轮规格   13×4 1/2×8
后轮规格   φ254×82 φ310×125
车轮数量,前轮/后轮(×=驱动轮)   2/1×
前轮轮距(b10) mm 731
后轮轮距(b11)      mm 0
基本尺寸 门架/货叉架倾仰角,前倾/后倾(α/β)   3°/5.3°
门架缩回高度(h1) mm 2000
自由提升高度(h2) mm 0
提升高度(h3) mm 3000
门架展开高度(h4) mm 3875
护顶架高度(h6) mm 2000 2090
座位高度(h7) mm 945 1030
牵引销高度(h10) mm 760 860
总长(l1) mm 2290 2410
车体长度(不含货叉)(l2) mm 1290 1460
总宽(b1) mm 845 850
货叉尺寸(s/e/l) mm 30×100×1000 35×100×950
货叉架宽度(b3) mm 845 850
门架下方离地间隙(m1) mm 70
轴距中心离地间隙(m2) mm 65
工作通道宽度,1000X1200托盘(1200跨货叉放置)(Ast) mm 2775 2945
工作通道宽度,800X1200托盘(1200沿货叉放置)(Ast) mm 1890 1890
转弯半径(Wa) mm 1040 1210
性能参数 行驶速度,满/空载   公里/小时 8/9 7.0/9
提升速度,满/空载 m/s 0.12/0.28 0.15/0.22
下降速度,满/空载 m/s 0.23/0.22 0.17/0.20
牵引力,满/空载S2 60 分钟 N 1500/1700  1800/2300 
最大牵引力,满/空载S2 5 分钟  N 3320/3530 3420/3640
爬坡性能,满/空载S2 30 分钟  % 8/12 10/15
行车制动   液压+电磁
电机 驱动电机功率 S2 60 min kw 2.5 3
提升电机功率 S3 15% kw 3
蓄电池标准   DIN
蓄电池电压/额定容量K5  V/A 24/460 24/600
蓄电池重量 kg 450 560
电瓶尺寸,长/宽/高  mm 803/263/734 808/380/720
其它 驱动控制类型   脉冲交流
属具工作压力  Mpa 115 155
属具油量  升/分钟 30
驾驶员耳边噪音水平,根据 EN 12 053 分贝 70
 
拨打服务热线:021-57703699转1,由客服为你服务!
为了更好的服务于客户,罗倍拓的客服代表可能要求您提供相应的联系方式.谢谢配合!
 
更多产品  
24V迷你平衡重叉车
24V迷你平衡重叉车
额定载重500-1500kg
载荷中心距400mm
起升高度2950/2930mm
重量(含电池)1.195-2.162T
查看详情>>
迷你型电动叉车
迷你型电动叉车
额定载重800-1200kg
载荷中心500mm
最大起升高度3000mm
整车重量(含电池)1.85/2.2T
查看详情>>
 
返回页头
 
 
热卖促销
[01] 搬运设备
[02] 堆高设备
[03] 电动叉车
[04] 内燃叉车
[05] 高空作业
[06] 升降平台
[07] 起重吊运
[08] 仓储设备
[09] 工位装备
[10] 清洁设备
[11] 环保节能
[12] 包装设备
[13] 称重设备
 
 
   
 
产品体系
高端设计
品牌策略
直销模式
品牌优势
租赁业务
持续发展
 
产品关建词
下载专区
视频展示
产品目录
公司资质
 
物料搬运知识
高空作业平台
起重设备知识
环保节能产品
工业安全知识
售后保养知识
 
服务概述
服务特点
客户价值
售后服务
展厅及OEM基地
行业应用
 
精选案例
出口案例
物流运输
服务行业
汽车行业
食品化工 更多>>