座驾式三向电动叉车(货叉转向180°) |
您的当前位置:首页 >> 产品中心 >> 座驾式三向电动叉车(货叉转向180°) |
 |
|
|
·采用ZAPI 新型全交流控制器、德国进口ZF变速箱,高效率,低噪音。是一款多功能、高适应性车型,完全满足窄巷道,宽巷道及平台的使用要求。 ·货叉的上升、下降、左移、右移、左旋、右旋等功能都在手动模式下完成。 ·在自动模式下,通过人机界面能实现货物存取准备、高度定层等操作,在满足纵向定位的条件下,还可实现自动存取货。 ·人机界面在本机上不仅作为一种输入设备,而且还能实时显示转向轮、货叉的方位及货叉的横向位置及高度、货物的重量等数据。 ·还配备了独立的视频显示系统,无论货叉处于何种高度,操作人员都能够近距离的观察货物的种类、形状及位置。
| 货 号 |
BT06033 |
BT06034 |
| 规格 |
载重量/额定负荷 |
kg |
1250 |
1500 |
| 载荷中心距(C) |
mm |
600 |
600 |
| 前轮中心至旋转中心距离(X) |
mm |
838.5 |
880 |
| 轴距(y) |
mm |
1764 |
2094 |
| 重量 |
整车重量(含电池) |
kg |
7822 |
8637 |
| 车轴载荷,载货前/后 |
kg |
6190/2432 |
7260/2852 |
| 车轴载荷,空载前/后 |
kg |
4693/3129 |
5287/3525 |
| 轮胎 |
轮胎材质 |
|
EHC |
EHC |
| 轮胎尺寸 |
|
285×100/285×108 |
285×100/285×108 |
| 轮胎尺寸(驱动) |
|
400×160 |
400×160 |
| 轮胎数量,前/后(x=驱动轮) |
|
2(out)/2(in)/1x |
2(out)/2(in)/1x |
| 轮距 |
mm |
1400 |
1400 |
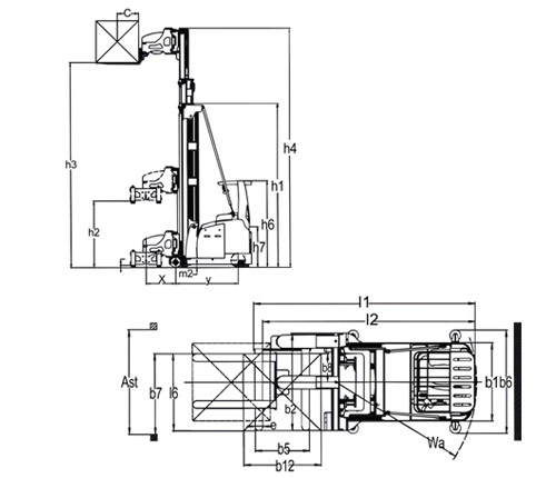
| 基本尺寸 |
门架净高(h1) |
mm |
2950 |
2950 |
| 起升高度(h3) |
mm |
5500 |
5500 |
| 门架最大作业高度(h4) |
mm |
6610 |
6610 |
| 护顶架高度(h6) |
mm |
2491 |
2491 |
| 座椅高度(h7) |
mm |
1210 |
1210 |
| 整车长度(空载)(l1) |
mm |
3428 |
3716 |
| 整车至货叉表面的长度(l2) |
mm |
3170 |
3535 |
| 整车宽度(b1/b2) |
mm |
1210/1502 |
1210/1502 |
| 货叉规格(s/e/l) |
mm |
40/122/1200 |
40/122/1200 |
| 货叉标准 |
|
2/A |
2/A |
| 叉架板宽度 |
mm |
880 |
880 |
| 货叉调节最大宽度 |
mm |
845 |
845 |
| 延长,横向(b7) |
mm |
1270 |
1270 |
| 满载门架离地间隙(m1) |
mm |
90 |
90 |
| 最小的离地空隙(m2) |
mm |
90 |
90 |
| 直角堆垛通道宽度(托盘1200×1200)(Ast) |
mm |
4015 |
4015 |
| 转弯半径(Wa) |
mm |
2175 |
2500 |
| 托盘宽度(b12) |
mm |
1200 |
1200 |
| 托盘长度(l6) |
mm |
1200 |
1200 |
| 驾驶操作净高 |
mm |
1130 |
1130 |
| 性能 |
行驶速度,载货/空载 |
km/h |
10.5/10.5 |
10.5/10.5 |
| 起升速度,载货/空载 |
mm/s |
320/380 |
320/380 |
| 降低速度,载货/空载 |
mm/s |
460/480 |
460/480 |
| 爬坡能力,载货/空载 |
% |
6/12 |
6/12 |
| 行车制动 |
|
液压制动 |
液压制动 |
| 驻车制动 |
|
电磁制动 |
电磁制动 |
| 旋转时间 |
s |
8 |
8 |
| 旋转角度 |
° |
180 |
180 |
| 侧移时间 |
S |
8 |
8 |
| 电气驱动 |
驱动电机额定功率 |
KW |
10 |
10 |
| 起升电机额定功率 |
KW |
12 |
12 |
| 蓄电池型号 |
|
5PZB500E |
5PEZB700E |
| 蓄电池电压,额定容量的K5 |
V/Ah |
80/500 |
80/700 |
| 蓄电池的重量 |
kg |
1322 |
1947 |
| 其它 |
控制器的类型 |
|
交流 |
交流 |
| 音量驱动器符合EN 12053 |
dB(A) |
73 |
73 |
| 操作方式 |
|
三向 |
三向 |
| 转向类型 |
|
电子转向 |
电子转向 | |
|
|
|
|
拨打服务热线:021-57703699转1,由客服为你服务!
为了更好的服务于客户,罗倍拓的客服代表可能要求您提供相应的联系方式.谢谢配合!