高空作业平台
 首  页  产品中心 关于ROBT 客服中心 营销中心 技术与服务 新闻中心 联系我们
热门产品: 搬运车    高空作业平台    电动堆高车    电动叉车    电动牵引车    购物车:0
 
   步行式平衡重全电动堆高车 您的当前位置:首页 >> 产品中心 >> 步行式平衡重全电动堆高车   
 
BT08401 BT08402 BT08403 BT08404
BT08405
分享到:
 
产品描述   细节设计   视频展示   项目案例

安全、高效设计
• 采用意大利原装进口减速箱及驱动轮,性能卓越,质量稳定可靠。
• 美国进口交流控制系统:反应灵敏、减少保养与噪音,无论从低速到高速还是高速到低速均有强劲的控制能力。

结构优化设计
• 德国原装进口手柄总成,操纵稳定灵活;
• 德国进口门架槽钢,安全美观,坚固耐用;
• 货叉可前倾、后倾;
• 后面配重,前面无固定插腿:a. 货叉可进入离地间隙很小的货物底部;
                                                      b. 可方便进入任何货场堆垛货物。
• 载重1500kg,提升高度从3m到5m,可达到不同的使用需求。

易维护设计
• 进口电量显示仪表,具有低电压报警灯;
• 产用进口AC驱动电动机:结构紧凑,性能高,具再生制动且保养简便;
• 采用大容量蓄电池组,保证动力强劲持久,充电方便快捷。蓄电池从侧面拉出,有利于电瓶的互换和保养;
• 低电压保护功能,在电压低于使用电压时保护电池,延长使用寿命。
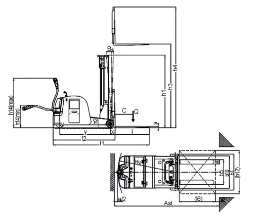
货 号 BT08401 BT08402 BT08403 BT08404 BT08405
驱动方式   电动(蓄电池)
驾驶方式   步行(Pedestrian)
额定载荷(Q) kg 1500
载荷中心距(C) mm 400
前悬距(x) mm 130
轴距(Y) mm 1380
自重(带电瓶) kg 2020
轴负载(满载时前/后轴) kg 460/3060
轴负载(空载时前/后轴) kg 970/1050
轮子材质   聚氨酯轮
轮子尺寸(前轮) mm Φ250×70
轮子尺寸(后轮) mm Φ200×100
轮,前后数量(x=驱动轮)   1x/2
后轮轮距(b10) mm 890
前轮轮距(b11) mm 0
门架缩回时高度(h1) mm 2014 2264 2514 2010 2176
自由提升高度(客户选配)(h2) mm 0
起升高度(h3) mm 3000 3500 4000 4500 5000
作业时门架最大高度(h4) mm 4000 4500 5000 5500 6000
操作手柄在驱动位置的高度(最小/最大)(h14) mm 730/1360
总体长度(l1) mm 2650
叉面长度(l2) mm 1700
车体宽度(b1) mm 990
货叉尺寸(s/e/l) mm 35/100/950(1070)
货叉外宽(b5) mm 680
轴距中心离地产隙(m2) mm 80
通道宽度,托盘1000×1200(1200跨货叉放置)(Ast) mm 2950
通道宽度,托盘800×1200(1200跨货叉放置)(Ast) mm 3070
转弯半径(Wa) mm 1570
行驶速度(满载/空载) km/h 5.8/6
提升速度(满载/空载) m/s 0-0.12/0-0.19
下降速度(满载/空载) m/s 0-0.42/0-0.41
最大爬坡能力(满载/空载) % 6/8
蓄电池电压/额定容量 V/Ah 24/320
蓄电池重量 kg 300-360
蓄电池尺寸(长×宽×高) mm 812×270×620
行车制动   电磁制动
驾驶员耳边噪音等级符合DIN12053 dB(A) 65

拨打服务热线:021-57703699转1,由客服为你服务!
为了更好的服务于客户,罗倍拓的客服代表可能要求您提供相应的联系方式.谢谢配合!
 
更多产品  
电子转向踏板式电动堆高车
电子转向踏板式电动堆高车
额定载重1500kg
起升高度2930mm
载荷中心600mm
电子转向
查看详情>>
电子转向踏板式电动堆高车
电子转向踏板式电动堆高车
额定载重1600/2000kg
起升高度2950mm
载荷中心600mm
电子转向
查看详情>>
货叉覆盖式全电动堆高车
货叉覆盖式全电动堆高车
额定载重1400/1600kg
起升高度3000-5000mm
载荷中心600mm
电子转向
查看详情>>
货叉覆盖式全电动堆高车
货叉覆盖式全电动堆高车
额定载重1200kg
起升高度3000-3600mm
载荷中心600mm
电子转向
查看详情>>
平衡重电子转向堆高车
平衡重电子转向堆高车
额定载重1.2/1.5T
起升高度3.27/3.2m
载荷中心500/600mm
电子转向
查看详情>>
平衡重式电动托盘堆垛车
平衡重式电动托盘堆垛车
额定载重1500/1600kg
载荷中心距500mm
标准门架起升高度3000/3700mm
自重(包含蓄电池)1890/1930kg
查看详情>>
宽支腿全电动堆高车
宽支腿全电动堆高车
额定载重1400/1600kg
起升高度3000-5000mm
载荷中心600mm
电子转向
查看详情>>
站驾式电动堆高车
站驾式电动堆高车
额定承载能1600/2000kg
起升高度3.0/4.5/2.5m
载荷中心距600mm
货叉长度1150mm
查看详情>>
 
返回页头
 
 
热卖促销
[01] 搬运设备
[02] 堆高设备
[03] 电动叉车
[04] 内燃叉车
[05] 高空作业
[06] 升降平台
[07] 起重吊运
[08] 仓储设备
[09] 工位装备
[10] 清洁设备
[11] 环保节能
[12] 包装设备
[13] 称重设备
 
 
   
 
产品体系
高端设计
品牌策略
直销模式
品牌优势
租赁业务
持续发展
 
产品关建词
下载专区
视频展示
产品目录
公司资质
 
物料搬运知识
高空作业平台
起重设备知识
环保节能产品
工业安全知识
售后保养知识
 
服务概述
服务特点
客户价值
售后服务
展厅及OEM基地
行业应用
 
精选案例
出口案例
物流运输
服务行业
汽车行业
食品化工 更多>>