| 货 号 |
BT00860 |
BT00861 |
BT00862 |
BT00863 |
BT00864 |
BT00865 |
|
特征 |
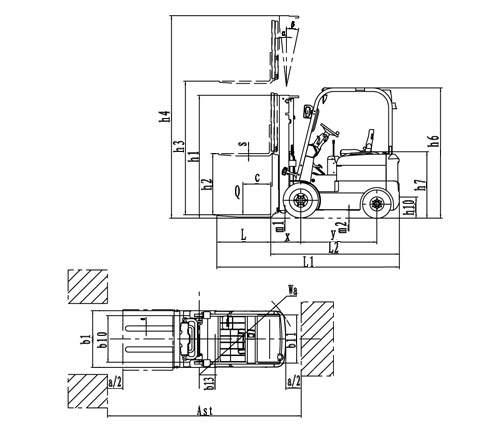
额定载荷(Q) |
kg |
1500 |
1800 |
2000 |
2500 |
3000 |
3500 |
| 载荷中心距(C) |
mm |
500 |
500 |
500 |
| 起升高度(h3) |
mm |
3000 |
3000 |
3000 |
| 自由起升高度(h2) |
mm |
135 |
100 |
100 |
| 货叉规格(s×e×L) |
mm |
40×100×920 |
40×120×1070 |
45×125×1070 |
50×125×1070 |
| 门架倾角(前/后)(α/β) |
° |
6/12 |
6/12 |
6/12 |
|
尺寸 |
到货叉垂直面距离(L2) |
mm |
2075 |
2385 |
2600 |
| 整车长度(L1) |
mm |
2995 |
3450 |
3620 |
3670 |
| 整车宽度(b1) |
mm |
1080 |
1150 |
1220 |
| 门架降低后高度(h1) |
mm |
1995 |
1995 |
2025 |
| 门架起升后高度(h4) |
mm |
3955 |
4220 |
4250 |
| 护顶架高度(h6) |
mm |
2170 |
2230 |
2230 |
| 座椅高度(h7) |
mm |
1130 |
1050 |
1050 |
| 转弯半径(最小)(Wa) |
mm |
1920 |
2100 |
2300 |
| 前悬距(前)(x) |
mm |
420 |
440 |
440 |
| 轮距(前/后)(b10/b11) |
mm |
890/920 |
920/900 |
920/900 |
| 离地高度(最小)(m2) |
mm |
110 |
100 |
120 |
| 轴距(y) |
mm |
1280 |
1500 |
1625 |
| 货叉可调宽度(最小/最大) |
mm |
240/1000 |
200/1000 |
290/1000 |
| 轮胎(充气轮胎) |
Front前×2 |
|
6.5-10-10PR |
7.00-12-12PR |
28X9-15 |
| rear后×2 |
|
5.00-8-10PR |
18X7-8 |
18X7-8 |
| 通道宽度,带1.0×1.2m托盘(Ast) |
mm |
3630 |
3630 |
3890 |
3990 |
4125 |
4225 |
| 通道宽度,带0.8×1.2m托盘(Ast) |
mm |
3430 |
3430 |
3690 |
3790 |
3925 |
4025 |
|
性能 |
行走速度(满载/空载) |
km/h |
11.5/12 |
11.5/12 |
13/13.5 |
13/13.5 |
11/12 |
11/12 |
| 起升速度(满载/空载) |
mm/s |
300/450 |
300/450 |
300/450 |
300/450 |
230/370 |
230/370 |
| 下降速度(满载/空载) |
mm/s |
450/440 |
450/440 |
440/435 |
440/435 |
500/480 |
500/480 |
| 爬坡度(满载/空载) |
% |
10.5/14 |
10.5/14 |
10.5/14 |
10.5/14 |
10.5/12 |
10.5/12 |
| 最大牵引力(保持25min)(满载) |
N |
11000 |
11000 |
17000 |
17000 |
18000 |
18000 |
|
驱动 |
驱动电机 |
kw |
7.5 |
7.5 |
11 |
11 |
11.75 |
11.75 |
| 起升电机 |
kw |
9.2 |
9.2 |
8.6 |
8.6 |
10 |
10 |
| 电瓶电压/电容 |
V/AH |
48/400(Max48/545) |
48/630(Max48/700) |
80/500(Max48/550) |
| 驱动系统 |
|
ZAPI 交流AC |
| 噪音水平 |
db(A) |
70 |
70 |
71 |
71 |
76 |
76 |
|
重量 |
电池重量(含电池箱) |
kg |
930 |
930 |
990 |
990 |
1492 |
1492 |
| 叉车自重(含电瓶) |
kg |
3650 |
3650 |
4150 |
4170 |
4980 |
5100 |
| 门架高度可选 |
3.3米(BT05000) |
3.3米(BT05016) |
| 3.5米(BT05001) |
3.5米(BT05017) |
| 轮胎可选 |
实心轮胎(BT00874) |
实心轮胎(BT00875) |
实心轮胎(BT00876) |
1.5-1.8T叉车可选配门架参数表(注:带侧移减去150kg,带整体式侧移减去100kg)
| 门架 |
货号 |
最大货叉高度 (mm) |
门架收进高度(mm) |
门架起升高度(mm) |
自由提升高度(mm) |
起重量(kg)(500mm载荷中心距) |
| 不带挡货架 |
带挡货架 |
不带挡货架 |
带挡货架 |
1.5T |
1.8T |
宽视野 二级门架 |
BT05000 |
3300 |
2130 |
3810 |
4310 |
120 |
120 |
1500 |
1800 |
| BT05001 |
3500 |
2230 |
4010 |
4510 |
120 |
120 |
1500 |
1800 |
| BT05002 |
3600 |
2280 |
4110 |
4610 |
120 |
120 |
1500 |
1800 |
| BT05003 |
4000 |
2530 |
4510 |
5010 |
120 |
120 |
1400 |
1600 |
| BT05004 |
4300 |
2680 |
4810 |
5310 |
120 |
120 |
1300 |
1500 |
| BT05005 |
4500 |
2780 |
5010 |
5510 |
120 |
120 |
1250 |
1400 |
全自由提升 二级门架 |
BT05008 |
3000 |
2015 |
3510 |
4010 |
1505 |
1005 |
1500 |
1800 |
| BT05009 |
3300 |
2165 |
3810 |
4310 |
1655 |
1155 |
1500 |
1800 |
| BT05010 |
3600 |
2315 |
4110 |
4610 |
1805 |
1305 |
1500 |
1800 |
宽视野 三级门架 |
BT05011 |
4300 |
1985 |
4810 |
5310 |
1475 |
975 |
1250 |
1450 |
| 4500 |
2035 |
5010 |
5510 |
1525 |
1025 |
1200 |
1350 |
| BT05012 |
4800 |
2135 |
5310 |
5810 |
1625 |
1125 |
1100 |
1250 |
| BT05013 |
5000 |
2200 |
5510 |
6010 |
1690 |
1190 |
1050 |
1150 |
| BT05014 |
5500 |
2370 |
6010 |
6510 |
1860 |
1360 |
/ |
/ |
| BT05015 |
6000 |
2585 |
6510 |
7010 |
2075 |
1575 |
/ |
/ |
2.0-2.5T叉车可选配门架参数表(注:带侧移减去150kg,带整体式侧移减去100kg)
| 门架 |
货号 |
最大货叉高度 (mm) |
门架收进高度(mm) |
门架起升高度(mm) |
自由提升高度(mm) |
起重量(kg)(500mm载荷中心距) |
| 不带挡货架 |
带挡货架 |
不带挡货架 |
带挡货架 |
2.0T |
2.5T |
宽视野 二级门架 |
BT05016 |
3300 |
2135 |
3985 |
4310 |
120 |
120 |
2000 |
2500 |
| BT05017 |
3500 |
2235 |
4185 |
4510 |
120 |
120 |
2000 |
2500 |
| BT05018 |
3600 |
2285 |
4285 |
4610 |
120 |
120 |
2000 |
2500 |
| BT05019 |
4000 |
2535 |
4685 |
5010 |
120 |
120 |
1900 |
2300 |
| BT05020 |
4300 |
2685 |
4985 |
5310 |
120 |
120 |
1800 |
2100 |
| BT05021 |
4500 |
2785 |
5185 |
5510 |
120 |
120 |
1700 |
2000 |
全自由提升 二级门架 |
BT05025 |
3000 |
2030 |
3705 |
4010 |
1325 |
1020 |
2000 |
2500 |
| BT05027 |
3300 |
2170 |
4005 |
4310 |
1465 |
1160 |
2000 |
2500 |
| BT05029 |
3600 |
2330 |
4305 |
4610 |
1625 |
1320 |
2000 |
2500 |
宽视野 三级门架 |
BT05030 |
4300 |
2020 |
5000 |
5310 |
1320 |
1010 |
1700 |
2000 |
| 4500 |
2100 |
5200 |
5510 |
1400 |
1090 |
1600 |
1900 |
| BT05031 |
4800 |
2205 |
5500 |
5810 |
1505 |
1195 |
1500 |
1700 |
| BT05032 |
5000 |
2290 |
5700 |
6010 |
1590 |
1280 |
1400 |
1600 |
| BT05033 |
5500 |
2540 |
6200 |
6510 |
1840 |
1530 |
1050 |
1200 |
| BT05034 |
6000 |
2790 |
6700 |
7010 |
2090 |
1780 |
700 |
800 |
3.0-3.5T叉车可选配门架参数表(注:带侧移减去150kg,带整体式侧移减去100kg)
| 门架 |
货号 |
最大货叉高度 (mm) |
门架收进高度(mm) |
门架起升高度(mm) |
自由提升高度(mm) |
起重量(kg)(500mm载荷中心距) |
| 不带挡货架 |
带挡货架 |
不带挡货架 |
带挡货架 |
3.0T |
3.5T |
宽视野 二级门架 |
BT05016 |
3300 |
2150 |
4005 |
4405 |
120 |
120 |
3000 |
3500 |
| BT05017 |
3500 |
2250 |
4205 |
4605 |
120 |
120 |
3000 |
3500 |
| BT05018 |
3600 |
2300 |
4305 |
4705 |
120 |
120 |
3000 |
3500 |
| BT05019 |
4000 |
2550 |
4705 |
5105 |
120 |
120 |
2850 |
3250 |
| BT05020 |
4300 |
2700 |
5005 |
5405 |
120 |
120 |
2700 |
3000 |
| BT05022 |
4500 |
2800 |
5205 |
5605 |
120 |
120 |
2550 |
2850 |
全自由提升 二级门架 |
BT05026 |
3000 |
2035 |
3715 |
4105 |
1320 |
930 |
3000 |
3000 |
| BT05028 |
3300 |
2185 |
4015 |
4405 |
1470 |
1080 |
3000 |
3500 |
| BT05029 |
3600 |
2335 |
4315 |
4705 |
1620 |
1230 |
3000 |
3000 |
宽视野 三级门架 |
BT05030 |
4300 |
2035 |
5005 |
5405 |
1330 |
930 |
2550 |
3250 |
| 4500 |
2115 |
5205 |
5605 |
1410 |
1010 |
2400 |
2850 |
| BT05031 |
4800 |
2220 |
6050 |
5905 |
1515 |
1115 |
2250 |
2700 |
| BT05032 |
5000 |
2305 |
6250 |
6105 |
1600 |
1200 |
2100 |
2500 |
| BT05033 |
5500 |
2555 |
6830 |
6605 |
1850 |
1450 |
1650 |
2200 |
| BT05034 |
6000 |
2805 |
7250 |
7105 |
2100 |
1700 |
1200 |
1850 |
性能 驱动电机 • 先进的AC驱动电机,能产生强大的牵引力和动力,确保车子在不平整的路面和斜坡上依然能平稳行驶。 • 高效易维护的AC电机,能确保电瓶的更长使用寿命。 • 防尘防水AMP接插件。 AC控制器 • 再生制动功能,延长电池有效使用时间。 • AC技术的采用,使得叉车的搬运和提升更加可靠和高效。 • 配重块具有较大空间,有助控制器散热。 • 智能的可编程液晶显示屏,能够显示故障代码,让驾驶员和维修师能够方便的发现车身故障,减少检测时间,提高维修效率。 刹车系统 • 易维护的刹车系统,使刹车更加安全和舒适。 • 电机在刹车减速过程中,起到制动作用。 • 防滑制动功能,能使叉车即使在斜坡上也能安全停车。 • 湿式盘刹系统。 液压系统 • 强劲的AC液压电机提供更大的扭矩,使货叉的起升和下降更加平稳。 转向系统 • 液压泵输出所需的转向扭矩,可以根据驾驶员在转向要求时智能响应,降低电量消耗。 门架 • 带组合式滚轮门架,高强度,低变形度。 • 后置油缸确保门架宽视野。 • 限流阀可调整门架下降速度,即使在油管爆裂时仍能防止门架快速下降,确保安全。
操控与安全 • 宽畅的操作空间。 • 能够根据驾驶员的需要大角度调整的方向柱。 • 操纵杆位置的设计更符合人机工程学原理,可减轻驾驶员的疲劳。 • 仪表的布置合理,能使驾驶员一目了然的观察到车子的运行状态。 • 较大的踏板接触面,超长的安全架扶手,独特的下扶手设计,使操作者上下车非常容易。 • 独特的侧扶手设计,使驾驶员在倒车时更具有安全感。 • 宽大舒适带缓冲功能的座椅。 • 大圆弧倒车镜面,视野宽阔。 • 宽视野门架,提高操作效率。 • 紧急断电开关的位置靠近驾驶员,使驾驶员能在最短时间内切断电源。

维护与保养 • 驱动电机、泵电机、制动踏板的合理布置,线油管的走向优化,方便取出的踏板,使零部件的检测、 维修、更换非常容易。 • 电瓶侧护板方便拆卸,无需拆除多路阀罩壳可打开电瓶盖,使电瓶维护保养十分方便。 • 制动油杯安装在仪表架上,便于检查及添加制动油。 • 交流驱动电机,无碳刷,基本无需维修,大大减少维护成本。 • 质量可靠的美国AMP防水接插件及电器件,所有电线、电缆均有可靠的保护,固定,大大降低了电器故障。 • 无需工具就能打开脚踏板,使电机等的检测方便容易。 • 可编程自我诊断的智能仪表可显示故障代码,方便调节运行参数。

|