高空作业平台
 首  页  产品中心 关于ROBT 客服中心 营销中心 技术与服务 新闻中心 联系我们
热门产品: 搬运车    高空作业平台    电动堆高车    电动叉车    电动牵引车    购物车:0
 
   站驾前移式蓄电池叉车 您的当前位置:首页 >> 产品中心 >> 站驾前移式蓄电池叉车   
 
BT06002 BT06003 BT06004 BT06005
BT06006 BT06007 BT06008 BT06009
分享到:
 
产品描述   细节设计   视频展示   项目案例
·前移式蓄电池叉车整机设计以人机工程为主导思想,融合国际先进的设计理念和技术,具有良好的安全性、操纵性和舒适性;
·流线型的外观设计,简洁明快的颜色搭配,无污染、低噪音、低振动等特点,充分体现了环保和人性化的设计理念;
·采用全液压转向、启动速度快慢可调、释放制动距离可调、固定低速行驶、转向延时等功能,实现了性能的个性化驾驶,保障了操作的舒适性。
·优良的行驶性能,门架高起升速度,在充分保障安全的前提下,大大提高了工作效率;
·较小的转弯半径设计,能使叉车在狭小的空间内灵活作业。先进的进口电子控制系统,在坡道下行时可平稳自动滑行;
·车辆处于静止状态时,停车制动器会自动起作用,当扳动加速器手柄时,停车制动会自动释放;
·宽视野的门架和护顶架,高空作业全景显示,大幅度改善了操作的视线范围,使操作更快、更安全;
·non-contact Hall induction 感应加速器,再生制动、故障智能化显示等功能,高端配置的AC交流系统具有电机免维护等特性,大大提高了维修性。
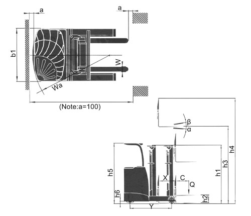
货 号 BT06002 BT06003 BT06004 T06005 BT06006 BT06007 BT06008 BT06009
载重量/额定负荷(Q) kg 1500 1800 2000 1000 1300 1500 1800 2000
载荷中心距© mm 500 500 500 500 500 500 500 500
货叉架倾角(前/后)(α/β) deg 3°/5° 3°/5° 3°/5° 3°/5° 3°/5° 3°/5° 3°/5° 3°/5°
前移距离(X) mm 600 600 645 520 700 600 600 645
轴距(Y) mm 1470 1470 1520 1160 1360 1470 1470 1520
动力形式   半交流 交流
轮胎材质   聚氨酯实心胎 聚氨酯实心胎
前轮尺寸 mm φ250×120 φ250×120 φ250×120 φ250×70 φ250×70 φ250×120 φ250×120 φ250×120
驱动轮尺寸 mm φ381×130 φ381×130 φ381×130 φ381×130 φ381×130 φ381×130 φ381×130 φ381×130
平衡轮尺寸 mm φ178×75 φ178×75 φ178×75 φ178×75 φ178×75 φ178×75 φ178×75 φ178×75
轮距(前/后) mm 1070/580 1070/580 1070/580 975/490 975/490 1070/580 1070/580 1070/580
门架缩回时高度(h1) mm 2090 2090 2090 2080 2080 2090 2090 2090
起升高度(h3) mm 3000 3000 3000 3000 3000 3000 3000 3000
作业时门架最大高度(h4) mm 4025 4025 4025 3930 3960 4025 4025 4025
护顶架高度(h5) mm 2260 2260 2260 2210 2210 2260 2260 2260
总长度(空载) mm 2340 2350 2350 2115 2125 2340 2350 2350
车体后侧长度 mm 1270 1280 1280 1045 1055 1270 1280 1280
车体宽度(b1) mm 1205 1216 1216 1045 1045 1205 1216 1216
货叉尺寸(L×W×T) mm 1070×122×35 1070×122×40 1070×122×40 1070×100×35 1070×100×35 1070×122×35 1070×122×40 1070×122×40
自由提升高度(h2) mm 330 330 330 330 330 330 330 330
最小的离地空隙(h6) mm 80 80 80 80 80 80 80 80
转弯半径(Wa) mm 1725 1735 1775 1420 1620 1725 1735 1775
最小直角堆垛通道(托盘1200×1200) mm 2910 2920 2920 2260 2710 2910 2920 2920
最小直角堆垛通道(托盘1000×1000) mm 2690 2700 2700 2440 2495 2690 2700 2700
行驶速度,载货/空载 km/h 9.5/10 9.2/10 9.0/10.3 8.0/8.5 8.0/8.5 8.8/9.3 8.5/9.3 9.1/9.0
满载时起升的速度 mm/s 230 220 230 175 175 240 230 220
最大爬坡能力(满载) (%) >12 >12 >10 >12 >12 >12 >12 >10
行车制动   机械  机械 机械 电磁 电磁 电磁
驱动电机 KW 4 4 4 2.5 2.5 4.5 4.5 4.5
升降电机 KW 8.6 8.6 8.6 3.5 3.5 9.2 11 11
电池电压,额定容量的K5 V/Ah 48/420 48/420 48/420 48/225 48/225 48/420 48/420 48/420
整车重量(含电池) kg 2670 2700 2725 2050 2150 2670 2700 2725
控制器的类型   半交流 交流
转向类型   液压转向 液压转向

可选配门架:
门架 货号 最大起升高度 门架全高(不起升时高度)
1.0T 1.3T 1.5T 1.8T 2.0T
mm mm mm mm mm mm



BT06500 3000 2080 2080 2090 2090 2090
BT06501 3600 2380 2380 2390 2390 2390
BT06502 3800 2480 2480 2490 2490 2490
BT06503 4000 2580 2580 2640 2640 2640
BT06504 4200 2680 2680 2740 2740 2740
BT06505 4500 2830 2830 2890 2890 2890
BT06506 4800 3030 3030 3040 3040 3040
BT06507 5000 3130 3130 3140 3140 3140
BT06508 5500 - - 3440 3440 3440
BT06509 6000 - - 3690 3690 3690
门架 最大起升高度 门架全高(不起升时高度)
1.0T 1.3T 1.5T 1.8T 2.0T
mm 货号 mm 货号 mm 货号 mm 货号 mm 货号 mm






5000 BT06515 2300 BT06519 2300 BT06523 2300 BT06648 2300 BT06662 2300
5200 BT06516 2365 BT06520 2365 BT06524 2365 BT06649 2365 BT06663 2365
5600 BT06517 2500 BT06521 2500 BT06525 2500 BT06650 2500 BT06664 2500
6000 BT06518 2635 BT06522 2635 BT06526 2635 BT06651 2635 BT06665 2635
6100   -   - BT06527 2665 BT06653 2665 BT06666 2665
6200   -   - BT06640 2700 BT06654 2700 BT06667 2700
6400   -   - BT06641 2765 BT06655 2765 BT06668 2765
6600   -   - BT06642 2835 BT06656 2835 BT06669 2835
7000   -   - BT06643 2965 BT06657 2965 BT06670 2965
7200   -   - BT06644 3035 BT06658 3035 BT06671 3035
7500   -   - BT06645 3135 BT06659 3135 BT06672 3135
8000   -   - BT06646 3300 BT06660 3300 BT06673 3300
8200   -   - BT06647 3365 BT06661 3365 BT06674 3365

拨打服务热线:021-57703699转1,由客服为你服务!
为了更好的服务于客户,罗倍拓的客服代表可能要求您提供相应的联系方式.谢谢配合!
 
更多产品  
经济型全电动单门架叉车-座驾式
经济型全电动单门架叉车-座驾式
电子转向
额定载荷1500/2000kg
起升高度1600mm
前移距离580mm
查看详情>>
经济型全电动双门架叉车-座驾式
经济型全电动双门架叉车-座驾式
电子转向
额定载荷1500/2000kg
起升高度2500-4000mm
前移距离580mm
查看详情>>
经济型全电动三门架叉车-座驾式
经济型全电动三门架叉车-座驾式
电子转向
额定载荷1500kg
起升高度4500-5000mm
前移距离 580mm
查看详情>>
经济型全电动单门架叉车-站驾式
经济型全电动单门架叉车-站驾式
电子转向
额定载荷1500/2000kg
起升高度1600mm
前移距离580mm
查看详情>>
经济型全电动双门架叉车-站驾式
经济型全电动双门架叉车-站驾式
电子转向
额定载荷1500/2000kg
起升高度2500-4000mm
前移距离580mm
查看详情>>
座驾前移式电瓶叉车
座驾前移式电瓶叉车
额定载荷1600/2000kg
载荷中心600mm
起升高度3000mm
前移距离520mm
查看详情>>
经济型全电动三门架叉车-站驾式
经济型全电动三门架叉车-站驾式
电子转向
额定载荷1500kg
起升高度4500-5000mm
前移距离580mm
查看详情>>
1.5T站驾前移式电瓶叉车
1.5T站驾前移式电瓶叉车
额定载荷1500kg
载荷中心600mm
起升高度3000mm
前移距离665mm
查看详情>>
 
返回页头
 
 
热卖促销
[01] 搬运设备
[02] 堆高设备
[03] 电动叉车
[04] 内燃叉车
[05] 高空作业
[06] 升降平台
[07] 起重吊运
[08] 仓储设备
[09] 工位装备
[10] 清洁设备
[11] 环保节能
[12] 包装设备
[13] 称重设备
 
 
   
 
产品体系
高端设计
品牌策略
直销模式
品牌优势
租赁业务
持续发展
 
产品关建词
下载专区
视频展示
产品目录
公司资质
 
物料搬运知识
高空作业平台
起重设备知识
环保节能产品
工业安全知识
售后保养知识
 
服务概述
服务特点
客户价值
售后服务
展厅及OEM基地
行业应用
 
精选案例
出口案例
物流运输
服务行业
汽车行业
食品化工 更多>>