·窄通道、高货架货物堆垛的最佳选择; ·站驾操作,视野宽广,作业方便; ·电转向控制,舒适高效!
高性能、高可靠: ·交流驱动系统,提供强劲动力;控制更精确,运行更平衡; ·高强度立式变速箱,超长工作寿命; ·经过多层检测测试的油泵、油缸及管路,保证了液压系统高可靠; ·质量可靠的美国AMP防水接插件及电器件,所有电线、电缆均有可靠的保护和固定,大大降低了电器故障; ·起大高强度承载轮设计,确保整车稳定性; ·高效散热系统(支持长时间连续工作); ·浮动驱动轮设计,保证适合各种路面不平的工况。
更安全: ·液压系统防爆设计,即使油管爆裂,门架也不会快速下降,提高安全; ·弯道自动减速功能,行驶更安全; ·紧急断电开关,在操作失控时可轻松切断所有电源,避免紧急事故; ·起升多重限位,堆垛更安全; ·防滑制动功能,使车子在失控或者斜坡行驶时,防止其下滑; ·强壮的护顶架设计,作业更安全; ·双路监控电子转向,国际一流安全设计(电转向)。
易操作: ·充分考虑人机工程的操控台,各功能按钮方便轻松操作; ·驾驶位置设计靠背和座托,驾驶更舒适; ·宽敞的驾乘空间设计,明显提高驾驶舒适性; ·紧凑设计,行驶灵活自如; ·一个动作即可完成电瓶拉取,轻松更换电瓶,方便连续作业; ·电子转向,操纵更轻便(电转向)
便维护: ·AC电机,免于维护; ·可显示故障代码的仪表,大大方便维修保养; ·全开放维修空间,便于零部件的检测、维修及更换; ·直立式电机的使用,使电机、刹车等的检测、维修直接方便,维修性能大大好于横置式电机; ·控制器自我诊断系统; ·低电压自动保护,延长电瓶寿命。
| 货 号 |
BT06713 |
| 特征 |
动力形式 |
|
蓄电池 |
| 驾乘方式 |
|
站驾式 |
| 额定载重量(Q) |
kg |
1500 |
| 载荷中心距(C) |
mm |
600 |
| 轴距(y) |
mm |
1504 |
| 重量 |
自重 |
kg |
2370 |
| 桥负荷,货叉前移 空载驱动端/承载端 |
|
1229/1230 |
| 桥负荷,货叉后移 空载驱动端/承载端 |
|
1621/846 |
| 桥负荷,货叉前移 满载驱动端/承载端 |
kg |
490/3445 |
| 桥负荷,货叉后移 满载驱动端/承载端 |
kg |
1510/2416 |
轮胎 底盘 |
轮胎材料,驱动轮/承载轮 |
|
聚氨酯 |
| 驱动轮尺寸(直径×宽度) |
mm |
260×105 |
| 承载轮尺寸(直径×宽度) |
mm |
254×114 |
| 平衡轮尺寸(直径×宽度) |
mm |
178×73 |
| 驱动轮/承载轮 数量 (x=驱动轮) |
|
1,2,2 |
| 前轮距,承载端(b10) |
mm |
974 |
| 后轮距,驱动端(b11) |
mm |
700 |
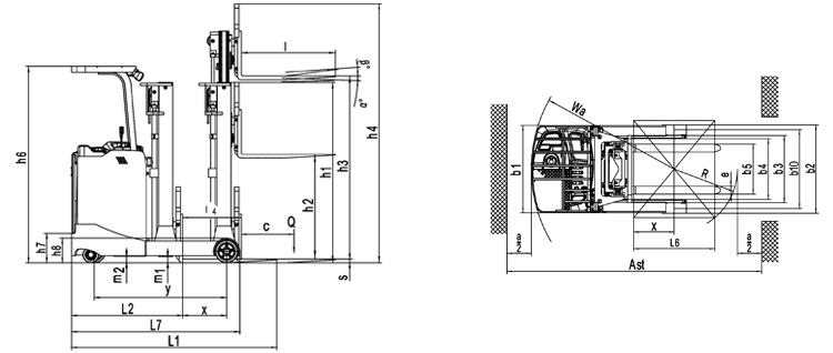
| 尺寸 |
货叉架倾角(前/后)(α/β) |
° |
2/4 |
| 全高(门架收缩)(h1) |
mm |
2050 |
| 自由起升高度(带挡货架)(h2) |
mm |
0 |
| 额定起升高度(h3) |
mm |
3000 |
| 最大起升时整车高度(h4) |
mm |
3860 |
| 护顶架(驾驶舱)高度(h6) |
mm |
2235 |
| 座椅面/站台面高度(h7) |
mm |
335 |
| 承载轮护板高度(h8) |
mm |
280 |
| 全长(最小)(l1) |
mm |
2335 |
| 货叉端面至车尾长度(l2) |
mm |
1265 |
| 全宽(车身/支腿)(b1/b2) |
mm |
1078/1090 |
| 货叉尺寸(s/e/l) |
mm |
40/100/1070 |
| 货叉架类型A,B |
mm |
A |
| 货叉架外宽(b3) |
mm |
830 |
| 货叉调节宽度(b5) |
mm |
200-620 |
| 支腿内宽(b4) |
mm |
750 |
| 前移距(l4) |
mm |
665 |
| 门架最小离地间隙(m1) |
mm |
70 |
| 车身最小离地间隙(m2) |
mm |
70 |
| 最小直角堆垛宽度(1000×1200托盘)(Ast) |
mm |
2745 |
| 最小直角堆垛宽度(800×1200托盘)(Ast) |
mm |
2770 |
| 转弯半径(Wa) |
mm |
1765 |
| 车身长度(不含货叉)(l7) |
mm |
1912 |
性能 参数 |
行驶速度,满载/空载 |
km/h |
8.5/9 |
| 起升速度,满载/空载 |
m/s |
0.26/0.45 |
| 下降速度,满载/空载 |
m/s |
0.45/0.43 |
| 前移速度,满载/空载 |
m/s |
0.83/0.84 |
| 最大爬坡度,满载/空载 |
% |
8/10 |
| 行车制动形式 |
|
电磁 |
| 驻车制动形式 |
|
电磁 |
| 电机 |
驱动电机额定功率 S2 60分钟 |
kW |
4 |
| 起升电机额定功率 S3 15% |
kW |
8.2 |
| 电瓶电压/标称容量K5 |
V/ Ah |
48/420Ah |
| 电瓶重量 |
kg |
739 |
| 电瓶允许最大尺寸 |
mm |
1030×353×784 |
| 其他 |
噪音等级 |
dB (A) |
75 |
| 驱动控制类型 |
|
交流 |
| 转向类型 |
|
电子 | |