·可达11M的堆垛,满足高货位高强度作业; ·欧美部套,性能卓越,质量可靠; ·人机设计,操纵舒适高效。
高性能、高可靠: ·德国全进口交流驱动系统,提供强劲动力; ·高强度立式变速箱,超长工作寿命; ·国际水准液压电机,经过多层检测测试的油缸及管路,保证了液压系统高可靠; ·质量可靠的美国AMP防水接插件及电器件,所有电线、电缆均有可靠的保护和固定,大大降低了电器故障; ·超大高强度承载轮设计,确保整车稳定性; ·高效散热系统(支持长时间连续工作); ·采用德国进口槽钢,经过有限元优化设计的高强度门架,经松达到11m起升高度。
更安全: ·液压系统防爆设计,即使油管爆裂,门架也不会快速下降,提高安全性; ·弯道自动减速功能,行驶更安全; ·紧急断电开关,在操作失控时可轻松切断所有电源,避免紧急事故; ·起升多重限位,堆垛更安全; ·防滑制动功能,使车子在失控或者斜坡行驶时,防止其下滑; ·全包围操作空间,作业更安全; ·双路监控电子转向,国际一流安全设计(电转向)。
易操作: ·充分考虑人机工程的操控台,各功能按钮方便轻松操作; ·宽敞的驾乘空间及悬浮座椅设计,驾驶更舒适; ·可调式方向柱,明显提高操控舒适性; ·高度显示,高度定位功能,操控更精准; ·紧凑设计,行驶灵活自如; ·一个动作即可完成电瓶拉取,轻松更换电瓶,方便连续作业; ·电子转向,操纵更轻便(电转向)。
便维护: ·AC电机,免于维护; ·可显示故障代码的仪表,大方便维修保养; ·180°以上大角度机罩开合,便于零部件的检测、维修及更换; ·直立式电机的使用,使电机、刹车等的检测、维修直接方便,维修性能大大好于横置式电机; ·控制器自我诊断系统; ·低电压自动保护,延长电瓶寿命。
| |
货 号 |
BT06714 |
BT06715 |
BT06716 |
BT06717 |
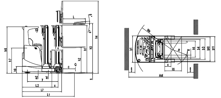
| 特征 |
动力形式 |
|
|
蓄电池 |
| 驾乘方式 |
|
|
座驾式 |
| 额定载重量 |
Q |
kg |
1600 |
2000 |
| 载荷中心距 |
c |
mm |
600 |
| 轴距 |
y |
mm |
1454 |
1524 |
| 重量 |
自重 |
|
kg |
2940 |
2945 |
| 桥负荷,货叉前移 空载驱动端/承载端 |
|
|
1700/1310 |
| 桥负荷,货叉后移 空载驱动端/承载端 |
|
|
1990/1020 |
| 桥负荷,货叉前移 满载驱动端/承载端 |
|
kg |
820/3820 |
| 桥负荷,货叉后移 满载驱动端/承载端 |
|
kg |
1640/3000 |
轮胎 底盘 |
轮胎材料,驱动轮/承载轮 |
|
|
聚氨酯 |
| 驱动轮尺寸(直径×宽度) |
|
mm |
343×140 |
| 承载轮尺寸(直径×宽度) |
|
mm |
310×118 |
| 平衡轮尺寸(直径×宽度) |
|
mm |
/ |
| 驱动轮/承载轮 数量 (x=驱动轮) |
|
|
1/,2 |
| 前轮距,承载端 |
b10 |
mm |
1148 |
| 后轮距,驱动端 |
b11 |
mm |
0 |
| 尺寸 |
货叉架倾角(前/后) |
α/β |
° |
2/4 |
| 全高(门架收缩) |
h1 |
mm |
2130 |
| 自由起升高度(带挡货架) |
h2 |
mm |
120 |
| 额定起升高度 |
h3 |
mm |
3000 |
| 最大起升时整车高度 |
h4 |
mm |
4065 |
| 护顶架(驾驶舱)高度 |
h6 |
mm |
2210 |
| 座椅面/站台面高度 |
h7 |
mm |
1200 |
| 承载轮护板高度 |
h8 |
|
330 |
| 全长(最小) |
l1 |
mm |
2470 |
| 货叉端面至车尾长度 |
l2 |
mm |
1400 |
| 全宽(车身/支腿) |
b1/b2 |
mm |
1260/1270 |
| 货叉尺寸 |
s/e/l |
mm |
40/100/1070 |
40/120/1070 |
| 货叉架类型A,B |
|
mm |
A |
| 挡货架外宽 |
b3 |
mm |
990 |
| 货叉调节宽度 |
b5 |
mm |
200-770 |
240-740 |
| 支腿内宽 |
b4 |
mm |
915 |
| 前移距 |
l4 |
mm |
520 |
| 门架最小离地间隙 |
m1 |
mm |
70 |
| 车身最小离地间隙 |
m2 |
mm |
70 |
| 最小直角堆垛宽度(1000×1200托盘) |
Ast |
mm |
2827 |
2842 |
| 最小直角堆垛宽度(800×1200托盘) |
Ast |
mm |
2891 |
2893 |
| 转弯半径 |
Wa |
mm |
1705 |
1770 |
| 车身长度(不含货叉) |
l7 |
mm |
1865 |
1935 |
性能 参数 |
行驶速度,满载/空载 |
|
km/h |
10/11 |
9/9.5 |
| 起升速度,满载/空载 |
|
m/s |
0.34/0.45 |
0.28/0.42 |
| 下降速度,满载/空载 |
|
m/s |
0.31/0.33 |
0.3/0.33 |
| 前移速度,满载/空载 |
|
m/s |
0.9/0.9 |
| 最大爬坡度,满载/空载 |
|
% |
10/15 |
| 行车制动类型 |
|
|
电磁,液压 |
| 驻车制动类型 |
|
|
电磁 |
电机 动力 单元 |
驱动电机额定功率 S2 60分钟 |
|
kW |
6.4 |
| 起升电机额定功率 S3 15% |
|
kW |
11 |
13 |
| 电瓶电压/标称容量K5 |
|
V/Ah |
48/500 |
| 电瓶重量 |
|
kg |
925 |
| 电瓶允许最大尺寸 |
|
mm |
1220×355×778 |
1220×427×778 |
其他 数据 |
噪音等级 |
|
dB (A) |
75 |
| 驱动控制类型 |
|
|
交流 |
| 转向类型 |
|
|
电子 | |